+385 99 430 9770
Menu
For Sale
Apartments
(105)
Houses
(56)
Lands
(66)
Hotels
(1)
Commercial Properties
(26)
Holiday Apartments
(17)
Garages
(3)
New properties
For Rent
Apartments (7)
Houses (5)
Commercial Properties (38)
New properties
About Us
Contact
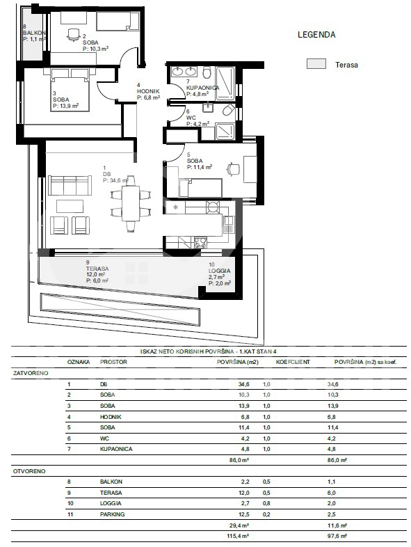
Apartment 3 rooms for sale, Varaždin,
297 680 €
‹
›
×
Basic information
Custom ID
ID-2162
Price
297 680 €
(2 242 870 kn)
Location
Varaždin, Centar (42000)
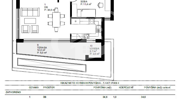
Area
97,60 m
2
Apartment type
3 rooms
Energy Class
A
Room Count
3
Bedroom Count
2
Bathroom Count
1
Floor
1
Floor Levels
Storey
Building Floors
1
Building Class
Residential
Parking Spaces
1
Various Features
Secure door
Balcony
PVC joinery
Aluminium joinery
Heating
Floor Heating
Air Conditioning
Utilities
Electricity
Water
Sewer
DSL/Internet
Phone Line
Building Condition
New
Permits and documentation
Building Permit
Property location
Contact this agent
Renato Bubanić
+385 99 353 2115
agent@nekretnine-mendek.eu
Send
This website is leaving "
cookies
" on your computer for the purpose of content navigation and anonymized usage statistics collection. By using this website you confirm that you agree with this.
I agree