Stan 4S za prodaju, Sračinec, 295 830 €

BEZ PROVIZIJE! NOVOGRADNJA! Obiteljski kvart! Kuća u nizu/stan s vrtom, 124,56 m2, prodaja

NOVOGRADNJA - Dvoetažni stan s vrtom 124,56 m2

Dvoetažan stan- odvojena dnevna i spavaća zona
• Privatni vrt – idealno za obitelj, odmor i kućne ljubimce
• Vlastito označeno parkirno mjesto za 2 automobila
• Odlična orijentacija i puno prirodnog svjetla
• Podno grijanje u cijelom stanu putem dizalice topline – visoka energetska učinkovitost i ugodna klima tijekom cijele godine
• Kupaonski radijator za dodatno grijanje
• Priprema za dvije klima jedinice – po jedna na svakoj etaži
• Ugrađeni rekuperatori – automatska ventilacija s povratom topline i uvijek svjež zrak u prostoru
• PVC stolarija s troslojnim staklom – izvrsna toplinska i zvučna izolacija
• Klasična gradnja opekom + termo fasada 15 cm
• Energetski razred A+
• Mogućnost odabira parketa, keramike i boja zidova
• Vlastiti priključci na struju, vodu i kanalizaciju
• Samostalni vodomjer i brojilo za električnu energiju

Neto korisna površina (NKP): 124,56 m2
Vrt (obračunska površina): 11,78 m2
Parkirno mjesto (obračunska površina): 12,85 m2
3 spavaće sobe | 1 kupaonica + 1 WC
Dvoetažni stan (prizemlje + kat)
Poseban ulaz i terasa s vrtom

Tehničke instalacije: (uključene u cijenu)
• Dizalica topline za grijanje i pripremu tople vode
• Rekuperacijski sustav – ventilacija s povratom topline ugrađena u obje etaže
• Priprema za 2 klima uređaja
• Podno grijanje u svim prostorijama
• Priključci za sve instalacije već izvedeni (struja, voda, kanalizacija)

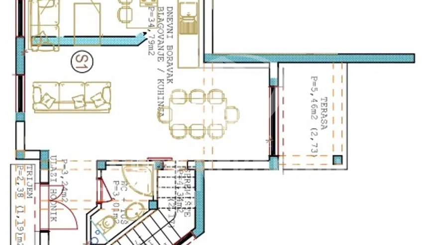
Raspored prostorija Prizemlje:
• Ulazni trijem
• Hodnik
• Spremište
• WC s tušem
• Dnevni boravak s kuhinjom i blagovaonicom (34,79 m2)
• Izlaz na natkrivenu terasu i privatni vrt
Kat:
• Tri spavaće sobe
• Kupaonica
• Hodnik
• Unutarnje stubište

Projekt se nalazi u mirnoj ulici s brzom prometnom povezanošću prema centru grada.
U blizini se nalaze trgovine, škola, vrtić i sve što je potrebno za kvalitetan obiteljski život.

CIJENA U PRETPRODAJI IZNOSI 2.375€/m2
PO ZAVRŠETKU CIJENA 2.500€/m2

BEZ PROVIZIJE ZA KUPCA!

Nekretnina je u sustavu PDV-a, kupac ne plaća porez na promet nekretnina (3 %).

ZA VIšE INFORMACIJA NAZOVITE MENDEK NEKRETNINE d.o.o. tel: +385 99 353 2115 Renato Bubanić agent@nekretnine-mendek.eu
Prilikom pregleda nekretnine, koji je neobavezan, ne naplaćuju se nikakvi troškovi.

KONAČNU CIJENU KUPAC UGOVARA IZRAVNO SA PRODAVATELJEM NAKON RAZGLEDA NEKRETNINE.
Ostalu ponudu nekretnina razgledajte na stranicama www.nekretnine-mendek.eu

Osnovne informacije

  • Šifra objektaID-1965
  • Prodajna cijena295 830 € (2 228 931 kn)
  • LokacijaSračinec (42209)
  • Kvadratura124,56 m2
  • Tip stana4S
  • Energetski razredA
  • Broj soba4
  • Broj spavaćih soba3
  • Broj kupaonica2
  • Kat opisnoPrizemlje
  • Broj etažaDvoetažni
  • Vrsta zgradeStambena
  • Br. parkirnih mjesta2

Razna svojstva

  • Terasa
  • Protuprovalna vrata
  • PVC stolarija

Grijanje

  • Klima
  • Podno grijanje

Instalacije

  • Struja
  • Voda
  • Kanalizacija

Stanje zgrade

  • Novogradnja

Prikaz nekretnine na karti

Kontaktiraj agenta

Renato Bubanić
Ova stranica ostavlja "kolačiće" na Vašem kompjutoru za potrebe navigacije i anonimizirane statistike pristupa. Korištenjem ove stranice prihvaćate i potvrđujete ove "kolačiće".