Stan 4S za prodaju, Varaždin, 364 650 €

BEZ PROVIZIJE! U IZGRADNJI! Luksuzna kuća u nizu/STAN 121 m2, okućnica 75 m2

Predstavljamo Vam modernu kuću u nizu- katnicu, ukupne bruto površine 151,39 m2, a neto obračunske površine 121,55 m2, smještenu u mirnom i obiteljskom dijelu Varaždina, blizu IV. i V. osnovne škole, vrtića i trgovačkih sadržaja.

Ključne značajke:

Veličina i raspored:
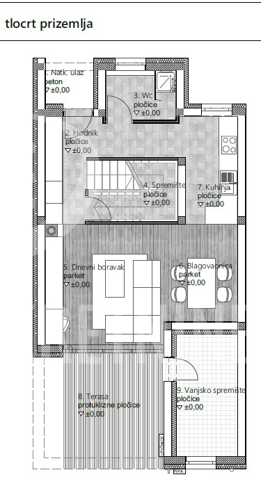
- Prizemlje: natkriveni ulaz, hodnik, wc, unutarnje spremište, kuhinja, blagovaonica, dnevni boravak, natkrivena terasa i vanjsko spremište.
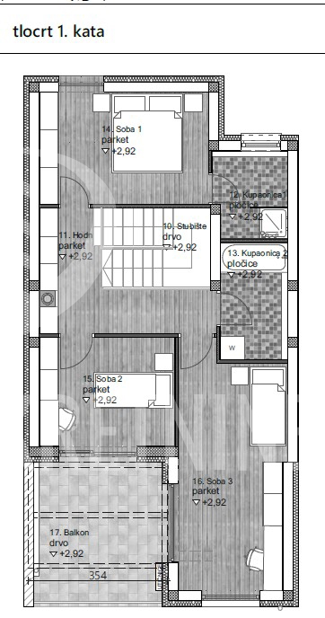
- Kat: hodnik, kupaonica s wc-om, tri spavaće sobe i balkon.

Vrt i parkiranje:
- Dvorište veličine cca. 75 m2 (dodatno se plaća po cijeni 150 €/m2), ograđeni prostor.
- Dva parkirna mjesta ispred kuće.

Komfor i infrastruktura:
- Sustav grijanja – dizalica toplina s podnim grijanjem.
- Sustav hlađenja - Klima uređaji.
- PVC stolarija.
- Svi standardni priključci: voda, struja, kanalizacija, internet.

Energetski razred A
Planirani završetak izgradnje: kraj 2026.

Cijena u pretprodaji: 3.000 €/m2

Kuća se nalazi u sustavu PDV-a, što znači da kupac ne plaća dodatni porez na promet nekretnina (3 %), a mladi ostvaruju pravo na povrat do 50% PDV-a

Lokacija i okolina
Smještena u mirnoj stambenoj četvrti “Texas” u Varaždinu, ovo je idealno mjesto za obiteljski život: u blizini su škole, vrtići, trgovine, zelenilo i ostala gradska infrastruktura. Posebno je pogodno ako želite kombinaciju urbanog života i mira u neposrednoj blizini centra.

Zašto odabrati ovu nekretninu?
Idealna za one koji traže novogradnju uz moderan dizajn i energetsku učinkovitost
Prostor dobro iskorišten, s otvorenom dnevnom zonom
Dvorište omogućuje uređenje okućnice i vanjske aktivnosti
Dobra lokacija – sve važne usluge i sadržaji na dohvat ruke
Transparentan trošak – nema dodatnog poreza na promet nekretnina, a mladi imaju pravo na povrat dijela PDV-a
Kupnja nekretnine je po principu "ključ u ruke” – mogućnost odabira opreme i interijera

PRAVOMOĆNA GRAĐEVINSKA DOZVOLA I GRADNJA ZAPOČETA.

KUPCI NE PLAĆAJU POSREDNIČKU NAKNADU..

ZA VIŠE INFORMACIJA NAZOVITE MENDEK NEKRETNINE d.o.o. tel: +385 99 353 2115 Renato Bubanić

MENDEK NEKRETNINE D.O.O. - OVLAŠTENA LICENCIRANA AGENCIJA ZA PRODAJU OVE NEKRETNINE

KONAČNU CIJENU KUPAC UGOVARA IZRAVNO SA PRODAVATELJEM NAKON RAZGLEDA NEKRETNINE.
Ostalu ponudu nekretnina razgledajte na stranicama www.nekretnine-mendek.eu

Osnovne informacije

  • Šifra objektaID-2104
  • Prodajna cijena364 650 € (2 747 455 kn)
  • LokacijaVaraždin, Texas (42000)
  • Kvadratura121,55 m2
  • Okućnica75,00 m2
  • Tip stana4S
  • Energetski razredA
  • Broj soba4
  • Broj spavaćih soba3
  • Broj kupaonica2
  • Kat opisnoPrizemlje
  • Broj etažaDvoetažni
  • Vrsta zgradeStambena
  • Br. parkirnih mjesta2

Razna svojstva

  • Terasa
  • Ostava (izba)
  • Dostupno invalidima
  • Vrt
  • Odvojen sanitarni čvor
  • Dodatne prostorije
  • PVC stolarija

Grijanje

  • Centralno grijanje
  • Centralno grijanje
  • Podno grijanje
  • Klima

Instalacije

  • Voda
  • Struja
  • Telefon
  • DSL/Internet
  • Kanalizacija
  • DSL/Internet

Stanje zgrade

  • Novogradnja

Orijentacija

  • Sjever
  • Jug

U blizini

  • Trgovina
  • Dječji vrtić
  • Škola
  • Park
  • Park
  • Trgovina
  • Autoput
  • Taxi
  • Rent-a-car
  • Benzinska postaja
  • Stanica za punjene el. automobila
  • Fitness
  • Frizerski salon
  • Restoran
  • Bolnica
  • Ljekarna
  • Zubarska ord.
  • Veterinar
  • Crkva
  • Centar naselja

Dokumentacija

  • Građevinska dozvola
  • Vlasnički list

Prikaz nekretnine na karti

Kontaktiraj agenta

Renato Bubanić
Ova stranica ostavlja "kolačiće" na Vašem kompjutoru za potrebe navigacije i anonimizirane statistike pristupa. Korištenjem ove stranice prihvaćate i potvrđujete ove "kolačiće".