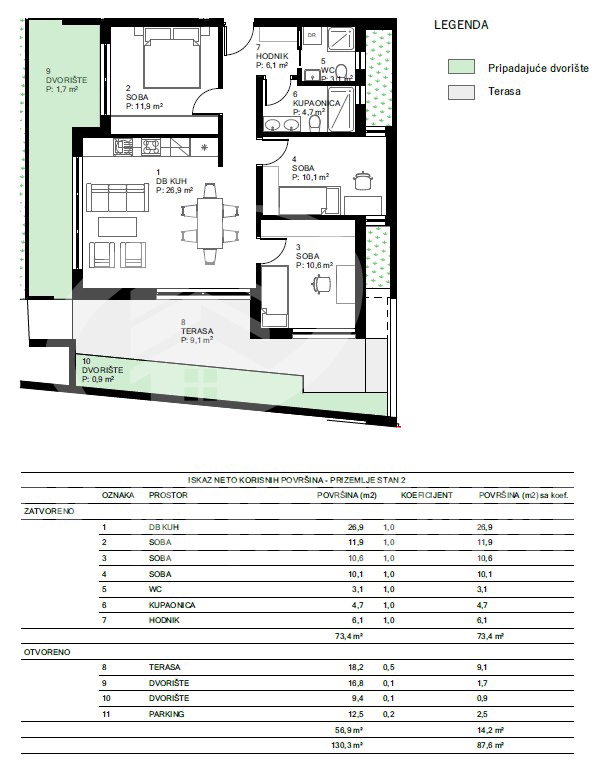
Appartamento 4 locali in vendita, Varaždin, 267 180 €

Informazioni di base

  • Codice immobileID-2160
  • Prezzo267 180 € (2 013 068 kn)
  • Localita'Varaždin, Centar (42000)
  • Superficie87,60 m2
  • Tipo di appartamento4 locali
  • Classe energeticaA
  • Numero di stanze4
  • Numero di camere da letto3
  • Numero di bagni1
  • Descrittivo pianiTerreno
  • Numero di pianiUn piano
  • Numero di piani1
  • Tipo di costruzioneResidenziale
  • Posti di parcheggio1

Caratteristiche varie

  • Porta antieffrazione
  • Per persone disabili
  • Terrazzo
  • PVC
  • Alluminio

Riscaldamento

  • Riscaldamento pavimento
  • Aria condizionata

Utenze

  • Elettricita'
  • Acqua
  • Scarico acqua
  • DSL/Internet
  • Linea telefonica

Condizione della costruzione

  • Nuovo

Permessi

  • Permesso di costruzione

Posizione della proprietà

Contattare questo agente

Renato Bubanić
Questo sito Web sta lasciando "cookie" sul tuo computer ai fini della navigazione dei contenuti e della raccolta di statistiche di utilizzo anonime. Usando questo sito web confermi di essere d'accordo con questo.