+385 99 430 9770
Menu
Vendita
Appartamenti
(82)
Case
(57)
Terreni
(80)
Alberghi
(1)
Immobili commerciali
(31)
Appartamenti per vacanze
(16)
Garage
(2)
Nuova proprietà
Affitto
Appartamenti (9)
Case (1)
Immobili commerciali (25)
Nuova proprietà
Chi siamo
Contatto
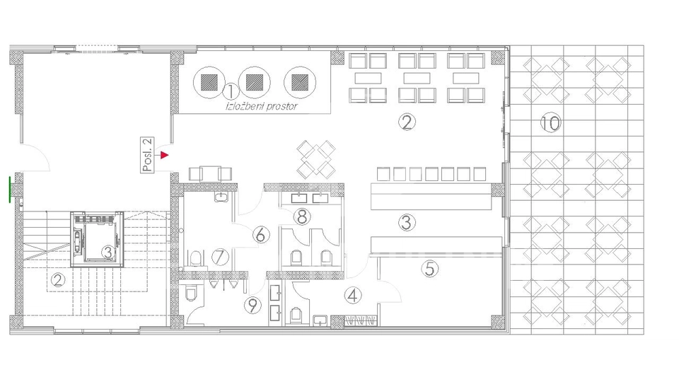
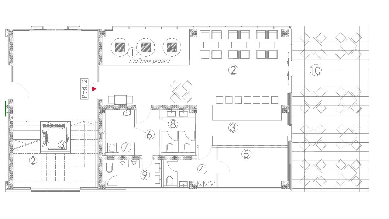
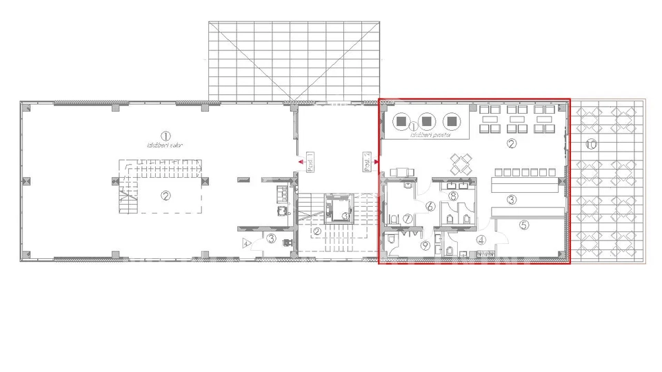
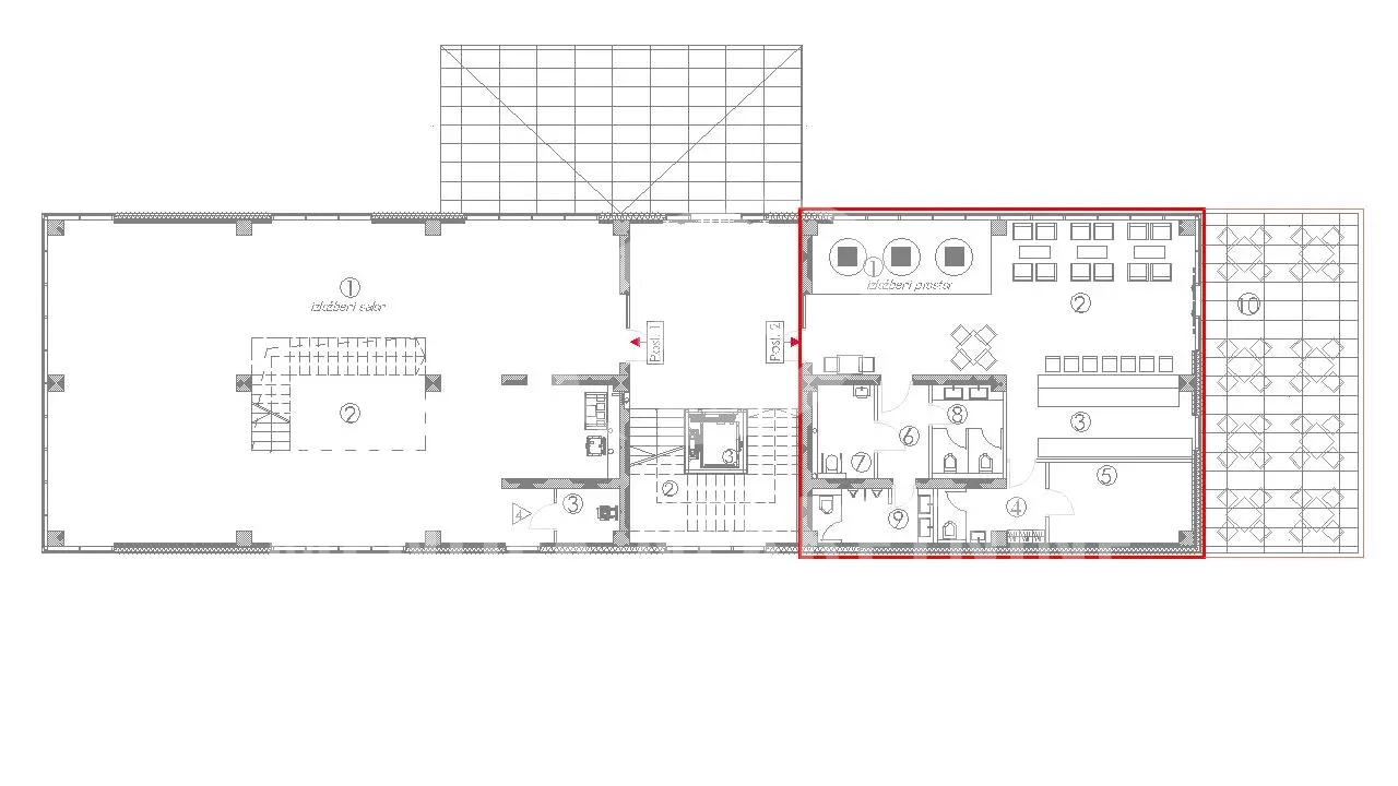
Uffici in vendita, Varaždin,
303 842 €
‹
›
×
Informazioni di base
Codice immobile
ID-2168
Prezzo
303 842 €
(2 289 298 kn)
Localita'
Varaždin, Varteks (42000)
Superficie
138,11 m
2
Classe energetica
In costruzione
Descrittivo piani
Terreno
Numero di piani
Un piano
Numero di piani
5
Tipo di costruzione
Commerciale
Assegnazione commerciale corrente
Catering
Anno di costruzione
2026
Posti di parcheggio
57
Caratteristiche varie
Terrazzo
Alluminio
Utenze
Elettricita'
Acqua
Scarico acqua
DSL/Internet
Condizione della costruzione
Nuovo
Permessi
Permesso di costruzione
Posizione della proprietà
Contattare questo agente
Renato Bubanić
+385 99 353 2115
agent@nekretnine-mendek.eu
Inviare
Questo sito Web sta lasciando "
cookie
" sul tuo computer ai fini della navigazione dei contenuti e della raccolta di statistiche di utilizzo anonime. Usando questo sito web confermi di essere d'accordo con questo.
Sono d'accordo.