+385 99 430 9770
Menu
Продажа
Квартиры
(75)
Дома
(48)
Земельные участки
(62)
Гостиницы
(1)
Офисные помещения
(27)
Апартаменты
(17)
Гаражи
(2)
Новые объекты
Аренда
Квартиры (8)
Дома (4)
Офисные помещения (31)
Новые объекты
О нас
Контакт
Квартира 4-к продается, Varaždin,
306 525 €
‹
›
×
Основная информация
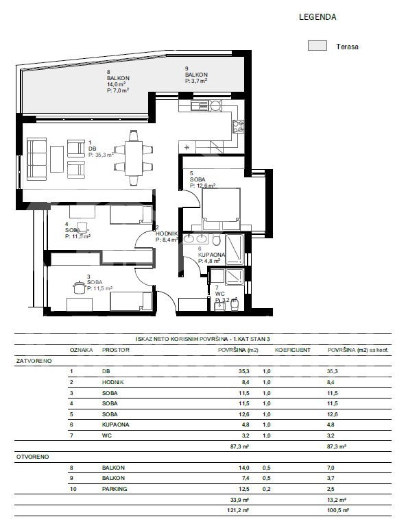
Код объекта
ID-2161
Цена продажи
306 525 €
(2 309 513 kn)
Местоположение
Varaždin, Centar (42000)
Площадь
100,50 m
2
Тип квартиры
4-к
Энергетический класс
A
Количество комнат
4
Количество спален
3
Количество санузлов
1
Этаж
1
Количество этажей
Двухэтажный
Всего этажей
1
Тип здания
Многоквартирный дом
Кол-во парковочных мест
1
Разные свойства
Противоударные двери
Балкон
ПВХ-столярка
Алюминиевая столярка
Отопление
Тёплый пол
Кондиционер
Проводка
Электричество
Вода
Канализация
DSL/Internet
Телефон
Состояние здания
Новостройка
Документация
Разрешение на строительство
Местонахождение объекта
Свяжитесь с этим агентом
Renato Bubanić
+385 99 353 2115
agent@nekretnine-mendek.eu
Отправь
Этот веб-сайт оставляет на вашем компьютере "
файлы cookie
" для навигации по содержимому и сбора анонимной статистики использования. Используя этот сайт, вы подтверждаете, что согласны с этим.
Согласен.