+385 99 430 9770
Menu
Prodaja
Stanovanja
(98)
Hiše
(55)
Zemljišča
(66)
Hoteli
(1)
Poslovni prostori
(33)
Apartmaji
(17)
Garaže
(3)
Nove izdaje
Najem
Stanovanja (9)
Hiše (5)
Poslovni prostori (36)
Nove izdaje
O nas
Kontakt
Pisarne za prodajo, Varaždin,
532 048 €
‹
›
×
Osnovni podatki
Šifra stavbe
ID-2169
Prodajna cena
532 048 €
(4 008 716 kn)
Lokacija
Varaždin, Varteks (42000)
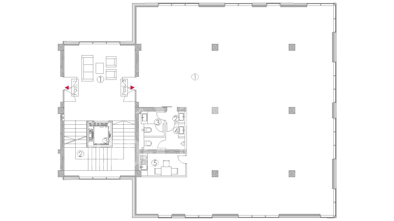
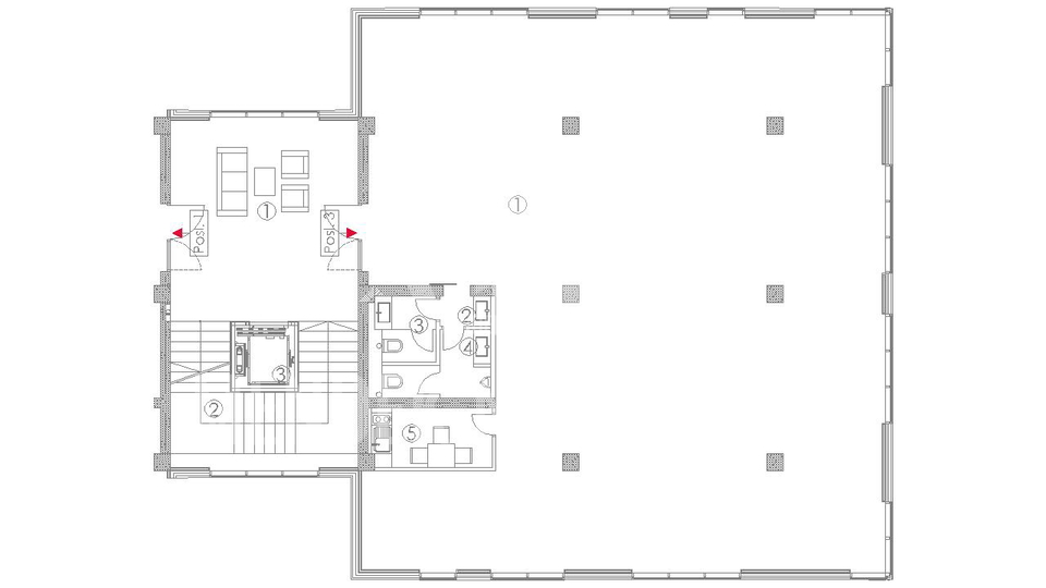
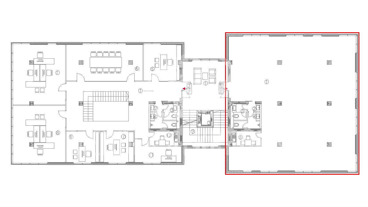
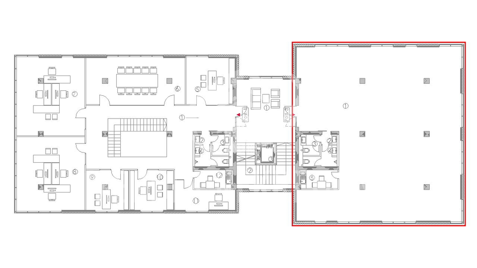
Kvadratura
241,84 m
2
Energetski razred
V gradnji
Nadstropje
1
Število etaž
Enoetažni
Nadstropij v stavbi
5
Vrsta stavbe
Poslovna zgradba
Trenutni namen
Pisarniški prostor
Leto izdelave
2026
Število parkirnih mest
57
Različne lastnosti
Alu
Inštalacije
Elektrika
Voda
Kanalizacija
DSL/Internet
Stanje stavbe
Novogradnja
Dovoljenja
Gradbena dovoljenja
Nepremičnina na zemljevidu
Kontakt zastopnika
Renato Bubanić
+385 99 353 2115
agent@nekretnine-mendek.eu
Pošlji
Ta spletna stran zapusti "
piškotke
" v računalniku za namene navigacije vsebine in anonimne zbirke statističnih podatkov o uporabi. Z uporabo te spletne strani potrjujete, da se strinjate s tem.
Strinjam se