+385 99 430 9770
Menu
Verkauf
Wohnungen
(106)
Häuser
(58)
Grundstücke
(67)
Hotels
(1)
Geschäftsräume
(27)
Ferienwohnungen
(21)
Garagen
(2)
Neue Angebote
Vermietung
Wohnungen (10)
Häuser (5)
Geschäftsräume (40)
Neue Angebote
Über uns
Kontakt
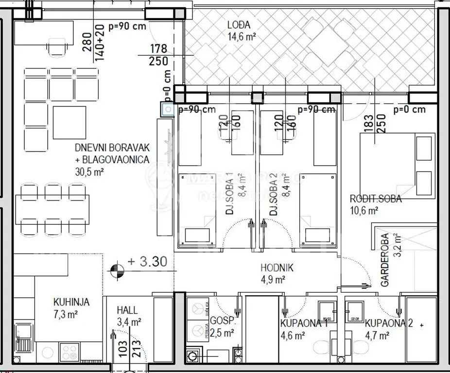
Wohnung 4-Z zu verkaufen, Čakovec,
258 570 €
‹
›
×
Grundlegende Informationen
Objekt-Kennnummer
ID-1292
Verkaufspreis
258 570 €
(1 948 196 kn)
Standort
Čakovec, Globetka (40000)
Fläche
99,45 m
2
Wohnungstyp
4-Z
Energieeffizienzklasse
A+
Anzahl der Zimmer
4
Anzahl der Schlafzimmer
3
Anzahl der Badezimmer
2
Geschoss
1
Anzahl der Stockwerke
Einstöckig
Geschosse insgesamt
3
Gebäudeart
Wohn- und Gewerbegebäude
Heizung
Zentralheizung
Bodenheizung
Gas
Klimaanlage
Installationen
Gas
Wasser
Kanalisation
Strom
Zustand des Gebäudes
Neubau
Dokumentation
Baugenehmigung
Bestätigung des Hauptprojektes
Eigentümerliste
Standort der Immobilie
Kontaktieren Sie diesen Agenten
Renato Bubanić
+385 99 353 2115
agent@nekretnine-mendek.eu
Sende
Diese Website hinterlässt "
Cookies
" auf Ihrem Computer zum Zweck der Inhaltsnavigation und anonymisierten Nutzungsstatistiken. Durch die Nutzung dieser Website bestätigen Sie, dass Sie dem zustimmen.
Ich stimme zu