+385 99 430 9770
Menu
Verkauf
Wohnungen
(105)
Häuser
(56)
Grundstücke
(66)
Hotels
(1)
Geschäftsräume
(26)
Ferienwohnungen
(17)
Garagen
(3)
Neue Angebote
Vermietung
Wohnungen (7)
Häuser (5)
Geschäftsräume (38)
Neue Angebote
Über uns
Kontakt
Wohnung 3-Z zu verkaufen, Varaždin,
264 435 €
‹
›
×
Grundlegende Informationen
Objekt-Kennnummer
ID-2159
Verkaufspreis
264 435 €
(1 992 386 kn)
Standort
Varaždin, Centar (42000)
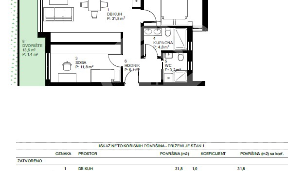
Fläche
86,70 m
2
Wohnungstyp
3-Z
Energieeffizienzklasse
A
Anzahl der Zimmer
3
Anzahl der Schlafzimmer
2
Anzahl der Badezimmer
1
Geschoss deskriptiv
Erdgeschoss
Anzahl der Stockwerke
Einstöckig
Geschosse insgesamt
1
Gebäudeart
Wohngebäude
Anzahl der Parkplätze
1
Sonstige Eigenschaften
Sicherheitstür
Barrierefrei
Terasse
Fenster und Türen aus Kunststoff
Fenster und Türen aus Aluminium
Heizung
Bodenheizung
Klimaanlage
Installationen
Strom
Wasser
Kanalisation
DSL/Internet
Telefon
Zustand des Gebäudes
Neubau
Dokumentation
Baugenehmigung
Standort der Immobilie
Kontaktieren Sie diesen Agenten
Renato Bubanić
+385 99 353 2115
agent@nekretnine-mendek.eu
Sende
Diese Website hinterlässt "
Cookies
" auf Ihrem Computer zum Zweck der Inhaltsnavigation und anonymisierten Nutzungsstatistiken. Durch die Nutzung dieser Website bestätigen Sie, dass Sie dem zustimmen.
Ich stimme zu